黄姚配套幼儿园项目占地面积约0.89万平方米,,,修建面积约0.76万平方米。。。。。。。
项目位置北至林苑路,,,南至沿山大道,,,西至学苑路,,,东至林苑路。。。。。。。
现在正于计划报审阶段,,,开工时间待定。。。。。。。
区位图
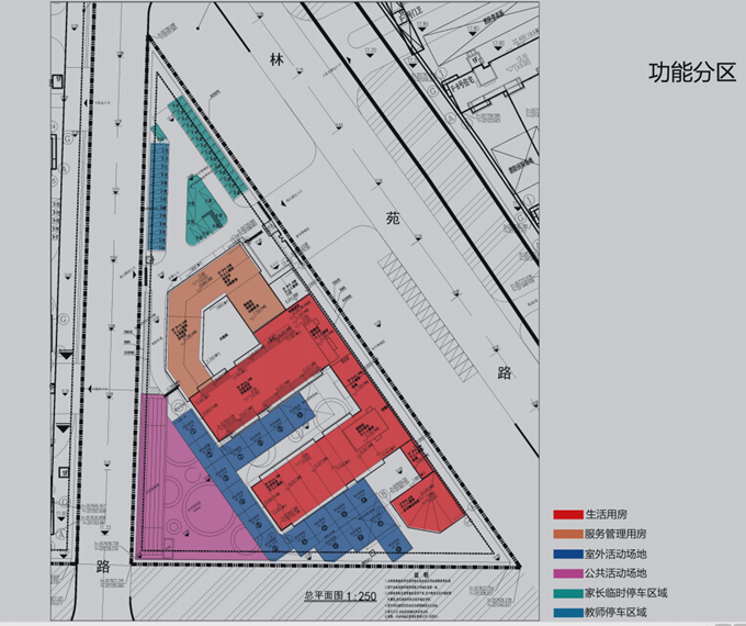
平面图
效果图
版权所有:yl6809永利 苏ICP备16057899